Microsoft
1212 169th Pl NE | Bellevue
Craftsman
Bedrooms
5
Bathrooms
4.25
Home Sq Ft
3,920
Lot SQ FT
7,760
OFFERED ATÂ
$2,850,000
STATUS
A MODERN CRAFTSMAN DESIGN NEAR MICROSOFT
Thoughtfully designed for everyday living, this home features a spacious two-story great room that connects seamlessly to a designer chef’s kitchen with luxury appliances. Enjoy year-round living on the private outdoor living area with heaters, looking over the private backyard. A butler’s pantry connects the kitchen to the formal dining room, making hosting simple and convenient. The main floor also includes a private guest suite with its own en suite bath and a two-car garage with an adjoining mudroom.
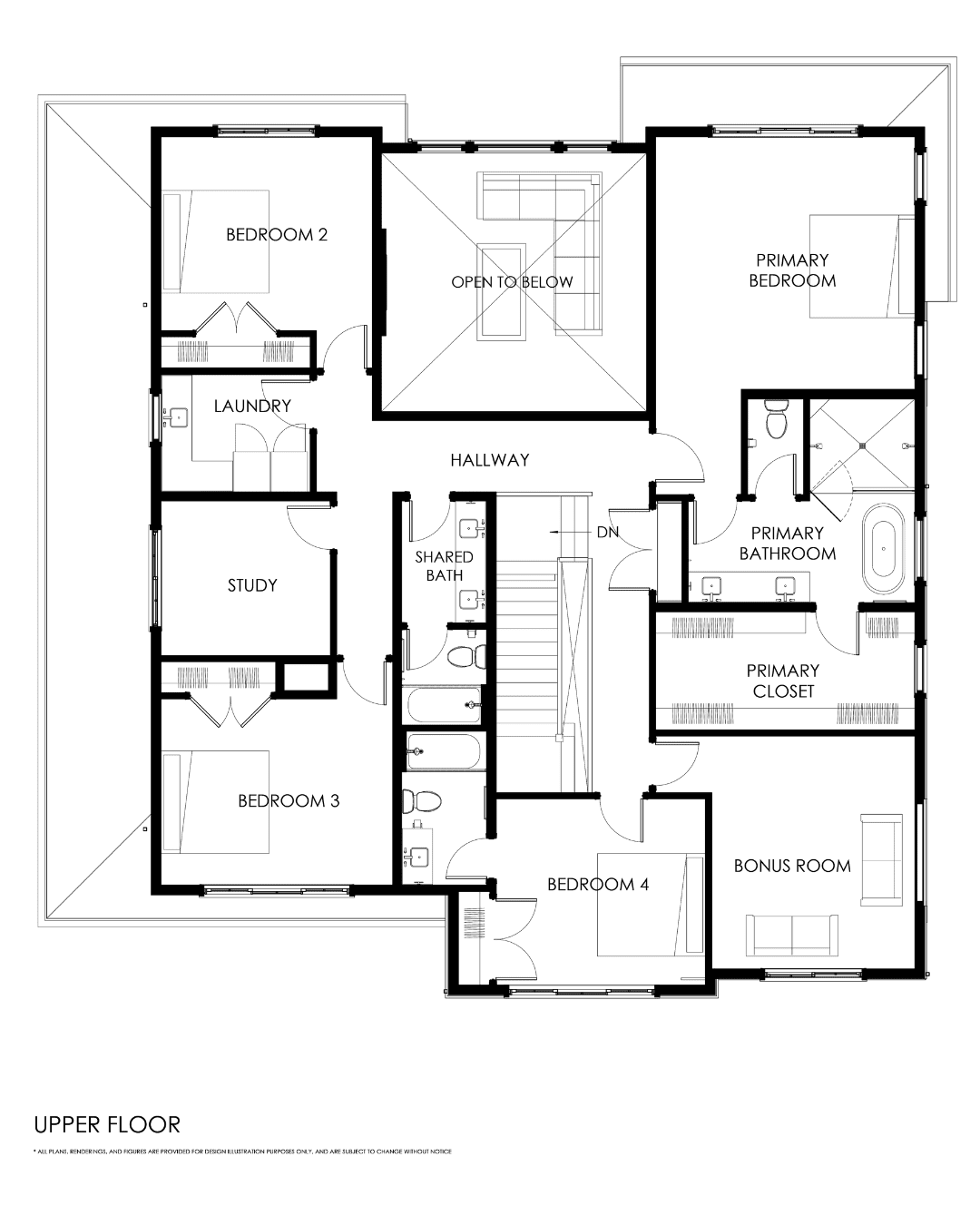
Upstairs, the primary suite offers a spa-like 5-piece bath with a walk-in closet and heated floors. Three additional bedrooms, each with generous closet space, a dedicated den, and a spacious bonus room provide plenty of flexibility for family and guests.
Smart home upgrades include a video doorbell, keyless entry, electric car charger, automated lighting, solar panels and more. Only minutes from Microsoft campuses, shopping, parks, and schools including Sherwood Forest Elementary, Highland Middle School, and Interlake High School.
- Minutes from Microsoft Campus, shopping, schools and parks
- Private outdoor covered living area with heaters
- 2-story great room
- Additional spaces: flexible upper level bonus space, dedicated den and formal dining room
- Secluded main-floor guest suite
- Designer primary suite with five-piece bath with heated floors
- 2-car garage
- Designer Chef's Kitchen
- Smart home features highlighted by video doorbell, door locks, solar panels & more
- Bellevue Schools: Sherwood Forest Elementary, Highland Middle School, and Interlake High School
We Plant 100 Trees for Every Home We Build
contact us
interEsted in this home?

