S. Rose Hill
6706 122nd Ave NE | Kirkland
FEBRUARY 2026
A TRANSITIONAL DESIGN IN SOUTH ROSE HILL
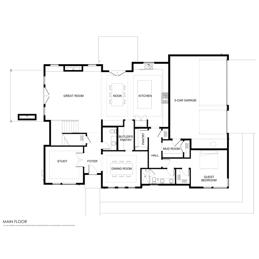
Perfect for both entertaining and everyday living, this home features a spacious two-story great room that flows seamlessly into a chef’s kitchen with luxury appliances. Enjoy year-round living on the private covered patio. A butler’s pantry connects the kitchen to the formal dining room, making hosting simple and convenient. The main floor also offers a guest suite with an en suite bath, a dedicated den for office space, and a spacious 3-car garage with an adjoining mudroom.
Upstairs, the primary suite retreat includes a spa-inspired 5-piece bathroom with heated floors, a walk-in closet, and connected laundry room. Three additional bedrooms with generous closets and a flexible bonus room provide plenty of flexibility for family and guests. Smart home features include a video doorbell, solar panels, smart locks, an electric vehicle charger, automated lighting controls, and more.
Ideally located is South Rose Hill with convenient access to downtown Kirkland & Bellevue amenities, parks, schools & all major tech campuses.
- Close proximity to Google, MSFT Campuses, 520 and 405, schools, beaches and parks
- Private outdoor covered living area
- Soaring 2-story great room
- Additional spaces: flexible upper level bonus space, dedicated den and formal dining room
- Private main-floor guest suite
- Designer primary suite with five-piece bath and connected laundry
- 3-Car wide garage
- West-facing front door
- Smart home features highlighted by video doorbell, door locks, solar panels & more
- Kirkland Schools: Franklin Elementary, Rose Hill Middle School, and Lake Washington High School
RENDERINGS



contact us
interEsted in this home?

